Quadrilocale in vendita

Roma, Via Edoardo Martini - Cinecittà Est
€ 390.000
4 locali 4 locali
146 Mq 146 Mq
2 bagni 2 bagni

Quadrilocale in vendita

Roma, Via Edoardo Martini - Cinecittà Est

Descrizione annuncio

Via Edoardo Martini - ampia metrura, quarto piano con esposizione aperta e vista ampia.

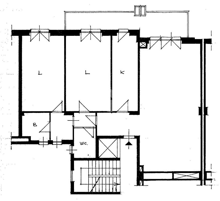
L'immobile si compone di ingresso sul soggiorno a vista di circa 50 mq, disimpegno, cucina abitabile, due camere da letto matrimoniali, ripostiglio, due bagni entrambi con finestra. balcone.

Facilmente trasformabile in quadrilocale

Completa la proprietà una cantina e il posto auto coperto

La zona ben servita ed adatta a persone di tutte le età per la presenza di ogni bene di prima necessità, adiacente al marcato coperto, scuole e Centri Commerciali. Ottimi collegamenti con Metro A Anagnina ed Università degli studi di Roma Tor Vergata.

Questa è un'opportunità unica, per ulteriori dettagli o per organizzare una visita, non esitate a contattarci. Saremo lieti di mostrarvi tutte le caratteristiche di questa esclusiva residenza. Contattaci su WhatsApp, sul nostro numero fisso oppure tramite il nostro indirizzo Mail.

Serietà e professionalità al vostro servizio.

Mostra tutto

Nelle vicinanze

Trasporto pubblico Trasporto pubblico
Anagnina
Anagnina
960 m
Cinecittà
Cinecittà
1,2 Km
Capannelle
Capannelle
2,8 Km
Oberto/Martini
Oberto/Martini
140 m
Rizzieri/Oberto
Rizzieri/Oberto
160 m
Ricariche auto elettriche Ricariche auto elettriche
Roma Alimena | EnelX
820 m
Roma CC Anagnina | EnelX fast
1,5 Km
Eneldrive Cinecittà
1,6 Km
IKEA Roma Anagnina
1,7 Km
EnelX EVAD IKEA Anagnina
1,9 Km
Scuole Scuole
Scuola dell'infanzia Colorarte
110 m
Scuole
230 m
Scuola Media Statale "Italo Calvino"
370 m
Istituto Comprensivo “Via Francesco Gentile 40”
370 m
Scuola Primaria "Bambini del Mondo"
390 m
Farmacia Farmacia
Farmacap
100 m
Farmacia Panunzi
420 m
Farmacia delle Rondini Dr Macaluso
1,6 Km
Farmacia
1,6 Km
Farmacia D’Isanto
1,8 Km
Ospedali Ospedali
Casa di riposo Bruno Buozzi
1,4 Km
Ambulatorio Policlinico Casilino – Edificio D
1,8 Km
Policlinico Casilino
2,0 Km
Farmacia Berna
2,0 Km
Supermercati Supermercati
EuroSpin
360 m
Carrefour
440 m
Sigma
760 m
Todis
790 m
InGrande
870 m
Negozi Negozi
Effetto moda
180 m
L'artigiano del pane
250 m
Pan Biscotto
260 m
La Bottega di noi
320 m
De Angelis
350 m
Bar Bar
Barrio Latino
880 m
Kalimba Club
1,4 Km
medcafè
1,9 Km
American bar
2,0 Km
Wood Roma
2,1 Km
Ristoranti Ristoranti
Ponte pizza
270 m
Cotto e mangiato
460 m
Ciak
780 m
RoadHouse Restaurant
860 m
Old Wild West
920 m
Mostra tutto

Caratteristiche

Rif.:
61194284
Piano:
4 di 7 con ascensore (Piano medio)
Posti auto:
1
Terrazzi:
1
Camere da letto:
2
Arredamento:
Assente
Mostra tutto
Prezzo Prezzo
€ 390.000
Rata mutuo Rata mutuo
€ 1.853 / mese
Spese annue Spese annue
€ 1.088
Proponi il tuo prezzoProponi il tuo prezzo

Classe Energetica

G
G
G
G
G
G
G
G
G
EP globale non rinnovabile:
175.00 kW h/m² anno
EP globale rinnovabile:
175.00 kW h/m² anno
EP invernale del fabbricato:
EP estiva del fabbricato:
Anno di costruzione:
1980
Riscaldamento:
Autonomo
Tipo impianto:
A radiatori
Tipo alimentazione:
Metano

Ti interessa visionare l'immobile?

Fissa un appuntamento  Fissa un appuntamento

Richiedi informazioni

Clicca su Leggi per aprire l'informativa
* Questi campi sono obbligatori

Calcola il tuo mutuo

Semplice e senza impegno
Anticipo

( % )
Mutuo

( % )

pochi semplici passi

inserisci i tuoi dati
Questionario completato
Grazie per aver richiesto un appuntamento senza impegno con un nostro Consulente del Credito e Assicurativo.

Hai inserito correttamente tutti i dati necessari e a breve riceverai una e-mail con un link da convalidare per inviare i tuoi dati.
Affiliato
Studio Cinecitta' Est Srl
Viale Antonio Ciamarra, 267 00173 Roma (RM)

Il nostro staff


  • Valerio Morganti
    Affiliato

  • Anna Bellucci
    Coordinatrice
Viale Antonio Ciamarra, 267 00173 Roma (RM)
Zona: Cinecittà est-Capannelle
Mostra su mappa
Orari: Dal Lunedi al Venerdì - dalle 09:00 alle 19.30 , Sabato dalle 09:00 alle 13.00
Affiliato
Studio Cinecitta' Est Srl
Viale Antonio Ciamarra, 267 00173 Roma (RM)

2026 Tecnocasa Franchising S.p.A. - P. IVA 08365160152 - Via Monte Bianco 60/A 20089 Rozzano (MI). Ogni agenzia ha un proprio titolare ed è autonoma. Privacy policy | Policy utilizzo | Cookie policy