Trilocale in vendita

Roma, Via Libero Leonardi - Cinecittà Est
€ 269.000
3 locali 3 locali
95 Mq 95 Mq
1 bagno 1 bagno

Trilocale in vendita

Roma, Via Libero Leonardi - Cinecittà Est

Descrizione annuncio

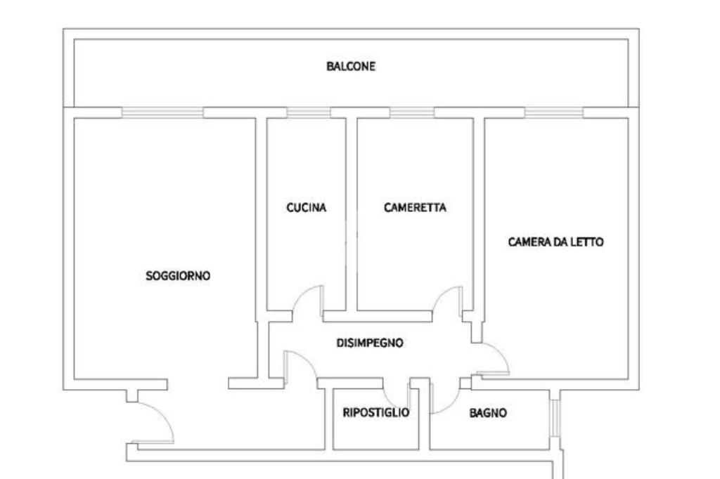
Via Libero Leonardi - Palazzina in tinta, piano quinto, esposizione SUD.

Trilocale composto da ingresso, soggiorno, disimpegno, cucina abitabile, cameratta, camera da letto matrimoniale, bagno e ripostiglio, comodo balcone.

Completa la proprietà un posto auto coperto, situato al piano piloty.

zona ben servita ed adatta a persone di tutte le età per la presenza di ogni bene di prima necessità, scuole e Centri Commerciali. Ottimi collegamenti con Metro A Anagnina ed Università degli studi di Roma Tor Vergata.

Questa è un'opportunità unica, per ulteriori dettagli o per organizzare una visita, non esitate a contattarci. Saremo lieti di mostrarvi tutte le caratteristiche di questa esclusiva residenza. Contattaci su WhatsApp, sul nostro numero fisso oppure tramite il nostro indirizzo Mail.

Serietà e professionalità al vostro servizio.

Mostra tutto

Nelle vicinanze

Trasporto pubblico Trasporto pubblico
Anagnina
Anagnina
1,1 Km
Cinecittà
Cinecittà
1,6 Km
Capannelle
Capannelle
3,0 Km
Ciamarra/Ruffo
Ciamarra/Ruffo
240 m
Ciamarra/Leonardi
Ciamarra/Leonardi
300 m
Ricariche auto elettriche Ricariche auto elettriche
Roma Alimena | EnelX
370 m
Roma CC Anagnina | EnelX fast
1,4 Km
IKEA Roma Anagnina
1,6 Km
EnelX EVAD IKEA Anagnina
1,8 Km
Roma Raf Vallone 12 | EnelX
1,8 Km
Scuole Scuole
Scuola elementare Federico Fellini
290 m
Università di Tor Vergata – Facoltà di Giurisprudenza
300 m
Scuola Media Italo Calvino
310 m
Scuole
380 m
Scuola dell'infanzia Colorarte
560 m
Farmacia Farmacia
Farmacap
210 m
Farmacia Panunzi
590 m
Farmacia Romanina
1,5 Km
Farmacia delle Rondini Dr Macaluso
1,6 Km
Farmacia
1,7 Km
Ospedali Ospedali
Casa di riposo Bruno Buozzi
1,7 Km
Ambulatorio Policlinico Casilino – Edificio D
2,0 Km
Policlinico Casilino
2,1 Km
Farmacia Berna
2,4 Km
Supermercati Supermercati
Fresco Market
460 m
Carrefour
510 m
EuroSpin
540 m
Todis
820 m
InGrande
1,1 Km
Negozi Negozi
La Bottega di noi
200 m
De Angelis
210 m
013
220 m
L'artigiano del pane
290 m
Effetto moda
290 m
Bar Bar
Barrio Latino
430 m
Wood Roma
1,8 Km
Kalimba Club
1,8 Km
Malecón Roma
1,8 Km
medcafè
2,0 Km
Ristoranti Ristoranti
Sushiko
460 m
Old Wild West
460 m
Ponte pizza
470 m
La Friseria
480 m
Cotto e mangiato
550 m
Mostra tutto

Caratteristiche

Rif.:
61146378
Piano:
5 di 8 con ascensore (Piano medio)
Posti auto:
1
Balconi:
1
Camere da letto:
2
Arredamento:
Assente
Mostra tutto
Prezzo Prezzo
€ 269.000
Rata mutuo Rata mutuo
€ 1.268 / mese
Spese annue Spese annue
€ 1.440
Proponi il tuo prezzoProponi il tuo prezzo

Classe Energetica

G
G
G
G
G
G
G
G
G
EP globale non rinnovabile:
175.00 kW h/m² anno
EP globale rinnovabile:
175.00 kW h/m² anno
EP invernale del fabbricato:
EP estiva del fabbricato:
Anno di costruzione:
1985
Riscaldamento:
Centralizzato
Tipo impianto:
A radiatori
Tipo alimentazione:
Metano

Ti interessa visionare l'immobile?

Fissa un appuntamento  Fissa un appuntamento

Richiedi informazioni

Clicca su Leggi per aprire l'informativa
* Questi campi sono obbligatori

Calcola il tuo mutuo

Semplice e senza impegno
Anticipo

( % )
Mutuo

( % )

pochi semplici passi

inserisci i tuoi dati
Questionario completato
Grazie per aver richiesto un appuntamento senza impegno con un nostro Consulente del Credito e Assicurativo.

Hai inserito correttamente tutti i dati necessari e a breve riceverai una e-mail con un link da convalidare per inviare i tuoi dati.
Affiliato
Studio Cinecitta' Est Srl
Viale Antonio Ciamarra, 267 00173 Roma (RM)

Il nostro staff


  • Valerio Morganti
    Affiliato

  • Anna Bellucci
    Coordinatrice
Viale Antonio Ciamarra, 267 00173 Roma (RM)
Zona: Cinecittà est-Capannelle
Mostra su mappa
Orari: Dal Lunedi al Venerdì - dalle 09:00 alle 19.30 , Sabato dalle 09:00 alle 13.00
Affiliato
Studio Cinecitta' Est Srl
Viale Antonio Ciamarra, 267 00173 Roma (RM)

2026 Tecnocasa Franchising S.p.A. - P. IVA 08365160152 - Via Monte Bianco 60/A 20089 Rozzano (MI). Ogni agenzia ha un proprio titolare ed è autonoma. Privacy policy | Policy utilizzo | Cookie policy